Skip to content
Home
About
New Builds
Home & Land
Renovations
Shop Fitting
Gallery
100-200m2 House Plan
200-250m2 House Plan
250-300m2 House Plan
Over 300m2 House Plan
Contact
X
SEND MESSAGE
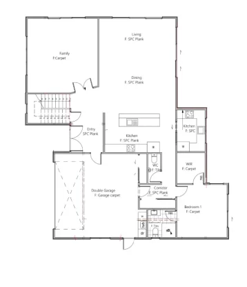
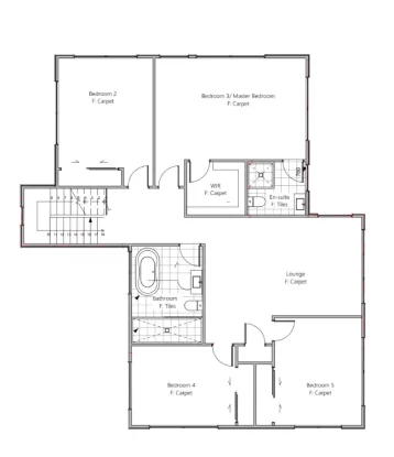
Over 300m2 House Plan
House Plans 100 - 200m2